Client information: Forerunner Specialist Ltd.
Area: 2220m2
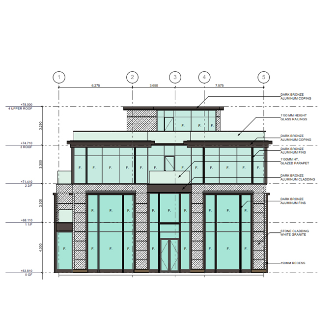
Scope: Unitised curtain wall

Factory Address: No.23, Shihua Blvd West, Xiangshuihe Industrial Zone, Daya Bay, Huizhou, Guangdong, China
Email: info@kfl-hy.com
Contact person: Mr. Johnson Chen
Telephone: +86 15016099093